テナントイトウビル 1階お部屋ID:8926436
北海道札幌市白石区菊水元町三条2丁目 /テナント /99.9m2 /1階部分 /南西向き /
| 賃料(共益費) | 165,000円
(5,500円) |
|---|
| 種別(面積) | テナント (
99.9 m2) |
|---|
物件情報
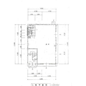
Room Plan
| 間取タイプ | テナント | ||
|---|---|---|---|
| 間取詳細 | |||
| 専有面積 | 99.9m2 | ||
| 方 位 | 南西向き | ||
| 所在階 | 1階部分 | ||
| 賃 料 | 165,000円 | ||
| 管理費 | 5,500円 | ||
| 敷 金 | 3ヶ月 | ||
| 礼 金 | なし | ||
| 状 態 | 空室
入居時期:即入 |
||
建物情報
| 物件種別 | [事業用] 店舗・事務所 |
|---|---|
| 所在地 | 北海道札幌市白石区菊水元町三条2丁目 |
| 交通 | |
| 構造 | 鉄骨造 地上3階 |
| 築年 | 1980年05月築 |
| 駐車場 | 小型自動車で5~6台可 |
設備・おすすめ
★ 条件
○ 保証会社利用必須
★ その他
○ 電気 ○ 水道(公営) ○ 照明 ○ フローリング
物件詳細
| 物件種別 | [事業用] 店舗・事務所 |
|---|---|
| 物件名 | イトウビル |
| 号室名 | 1階 |
| 所在地 | 北海道札幌市白石区菊水元町三条2丁目1番21号 |
| 交通 | |
| 構造 | 鉄骨造地上3階 |
| 築年月 | 1980年05月 |
| 駐車場 | 小型自動車で5~6台可 |
| 町会費 | |
| 所在階 | 1階部分 |
| 方位 | 南西向き   |
| 間取り | テナント |
| 専有面積 | 99.9 m2 |
| 状態 | 空室 |
| 賃料 | 165,000円 |
| 共益費 | 5,500円 |
| 敷金 | 3ヶ月 |
| 礼金 | なし |
| 他諸経費 | 保険:保険要加入(契約期間中必須) ※ 特記されているものだけを表示していますので、詳しくはお問い合わせの際にご確認ください。 |
| その他 | 普通借家3年間 普通借家 |
| オススメ | |
| 設備・条件 | ○ 保証会社利用必須 ○ 電気 ○ 水道(公営) ○ 照明 ○ フローリング |
| 情報更新日 | 2025-11-12 13:19:43 |
この物件に関するお問い合わせはこちら
お問い合わせの際に「イトウビル 1階」とお伝えいただくとスムーズです。
JAさっぽろ 白石支店 (不動産プラザ白石店)
TEL 011-861-1665 FAX 011-861-1139
平日 9:00~17:00 土・日・祝日休み
Copyright©JAさっぽろ All rights reserved.


